Leave a Message

Thank you for your message. We will be in touch with you shortly.

4507 S LOIS AVE

4507 S LOIS AVE

$510,000

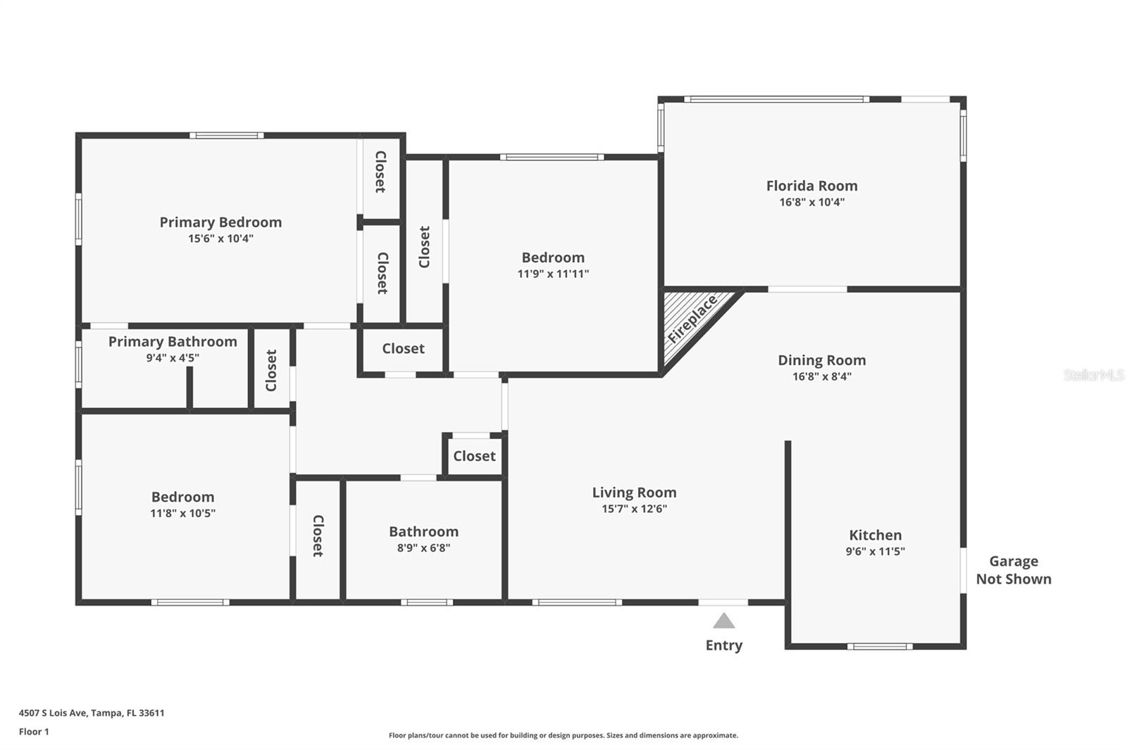
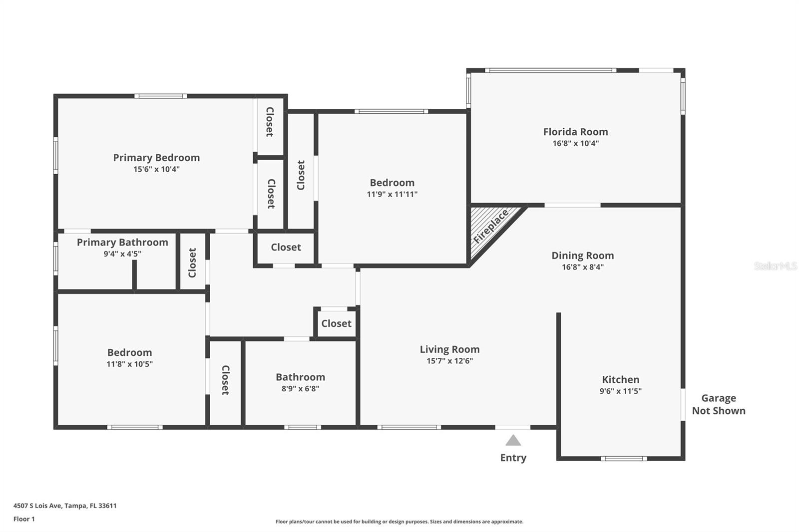
Welcome to this inviting 3-bedroom, 2-bath home set on a generous 80x104 lot. Timeless hardwood floors flow through the living spaces, anchored by a classic stone wood-burning fireplace, a natural gathering spot for cozy evenings. The kitchen blends charm and function with GE Profile stainless steel appliances, double ovens, a farm sink, and solid wood cabinets topped with stone countertops and undercabinet lighting, making a functional cooking space. The primary suite offers a peaceful retreat with two custom closets behind sliding mirrored doors and a private bath with a walk-in shower. Two additional bedrooms include built-in closets and ceiling fans, while the updated guest bath features wainscoting, crown molding, subway tile, and a shower-tub combo with a detachable showerhead. A versatile Florida room, accented with French doors, crown molding, and a wood-paneled ceiling, opens to the backyard, perfect as a playroom, sunroom, or casual lounge. Outside, a circular driveway and single-car garage make daily life easy, while a dedicated laundry area keeps chores tucked away. A shed for additional storage and a covered patio adds a relaxed outdoor living space complete with ceiling fan, TV mount, pergola, patio lights, retractable shade, and comfortable seating, ideal for quiet evenings or lively get-togethers. Peace of mind comes with thoughtful updates, including a newer roof (2024), water heater (2021) and AC (2015). Centrally located for quick access to Tampa's favorite restaurants, shops, and entertainment, this home balances everyday comfort with inviting spaces to gather and unwind. Schedule your private showing today!
Katie Glaser
Katie Glaser Contact
Meghan Iacofano
Meghan Iacofano Contact
Katie Glaser photo

Katie Glaser

Meghan Iacofano photo

Meghan Iacofano

Features & Amenities

Interior

Total Bedrooms 3
Total Bathrooms 2
Full Bathrooms 2
Laundry Room In Garage
Flooring Tile, Wood
Fireplace Family Room, Stone, Wood Burning
Appliances Dishwasher, Dryer, Microwave, Range, Range Hood, Refrigerator, Washer
Other Interior Features Ceiling Fans(s), Chair Rail, Crown Molding, Eat-in Kitchen, Living Room/Dining Room Combo, Primary Bedroom Main Floor, Solid Wood Cabinets, Stone Counters

Exterior

Stories 1
Garage Space 1.0
Water Source Public
Utilities BB/HS Internet Available, Cable Available, Electricity Connected, Sewer Connected, Water Connected
ROOF Shingle
Lot Features City Limits, In County, Oversized Lot, Paved
Parking Circular Driveway, Driveway, Garage Door Opener, Ground Level, On Street
Heat type Central
Air Conditioning Central Air
Sewer Public Sewer
Substructure Slab
Other Exterior Features Lighting, Other, Storage

Area & Lot

Status For Sale
LIVING SPACE 1,498 Sq.Ft.
TOTAL AREA 1,867 Sq.Ft.
LOT SIZE 8,320 Sq.Ft.
MLS® ID TB8431400
Type Residential
Year Built 1954
Neighborhood South Tampa Homes
Architecture Styles Ranch
ELEMENTARY SCHOOL Anderson-HB
MIDDLE SCHOOL Madison-HB
HIGH SCHOOL Robinson-HB

Financial

SALES PRICE $510,000
REAL ESTATE TAXES $1,793/yr
Zoning RS-60
image

Schedule a Showing

We would love to show you our beautiful property. Please select your preferred date and time below. An agent will be in touch shortly to confirm your appointment.

Schedule a Showing

We would love to show you our beautiful property. Please select your preferred date and time below. An agent will be in touch shortly to confirm your appointment.

Thank you for your interest in 4507 S LOIS AVE, TAMPA, FL 33611. We are reviewing your request and will be in touch shortly!

Mortgage Calculator

Estimate your monthly mortgage payment, including the principal and interest, property taxes, and HOA. Adjust the values to generate a more accurate rate.

All estimates are provided for informational purposes only. Actual amounts may vary.
$0,000 Your Payment 20 15 65
$0,000 Your Payment
South Tampa Homes

South Tampa Homes

Read more

Work With Us

Get assistance in determining current property value, crafting a competitive offer, writing and negotiating a contract, and much more. Contact the team today.

CONTACT US