Leave a Message

Thank you for your message. We will be in touch with you shortly.

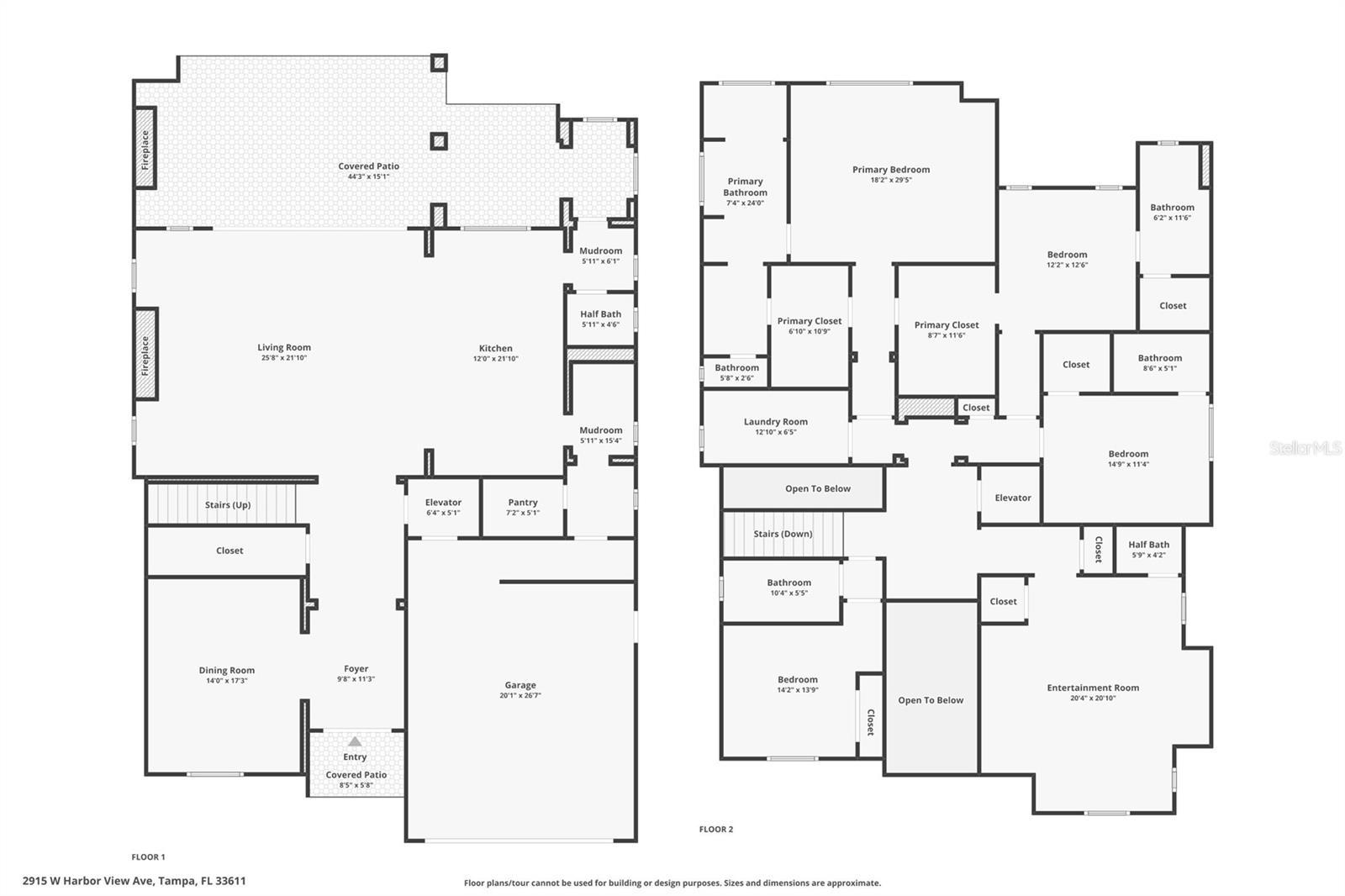
2915 W HARBOR VIEW AVE

2915 W HARBOR VIEW AVE

$3,800,000

Ideally positioned on a picturesque, sidewalk-lined street in the heart of Bayshore Beautiful, just moments from iconic Bayshore Boulevard, this nearly new custom residence by Taralon Homes delivers refined architectural presence and elevated living throughout. A pavered circular drive, travertine entry steps, and classic Bevolo gas lanterns create a striking arrival. Inside, a grand foyer with soaring ceilings and statement Restoration Hardware lighting introduces an open, light-filled floor plan with 7.5" naturally aged Medallion wide-plank flooring, 8' solid-core interior doors, and level-five smooth drywall. Formal dining with custom built-in cabinetry and a full wet bar featuring Sub-Zero refrigeration and a wine fridge anchors the main level alongside an expansive great room. This room is highlighted by a marble-clad electric fireplace wall and wall-length sliding glass doors that open seamlessly to the outdoors. The chef's kitchen pairs sculptural design with exceptional function, featuring a dramatic marble waterfall island, dual Thermador refrigerators, a six-burner Thermador gas range with custom hood, galley sink with on-demand filtered water, under-cabinet lighting, and built-in refrigeration drawers. A secondary wet bar with wine refrigeration and ice machine connects directly to the outdoor bar, while a fully equipped scullery with marble counters, additional dishwasher, and walk-in pantry provides discreet convenience. A custom drop zone with built-ins sits just off the garage. Indoor-outdoor living is effortless at the covered lanai with travertine flooring, drop-down screens, recessed lighting, speakers, and a fully appointed alfresco kitchen, overlooking the heated saltwater pool and spa framed by lush landscaping and hardscape. Upstairs, a flexible media lounge with custom cabinetry and wet bar complements generously sized secondary suites with custom closets and marble-finished en-suite baths. The primary suite is a serene retreat with coffered ceilings, dual custom walk-in closets, and a spa-inspired bath featuring a soaking tub, oversized walk-in shower with jewel showerheads, marble vanities with makeup station, towel warmer, and Toto fixtures. Additional highlights include elevator access to all levels, impact-rated windows and doors, spray-foam attic insulation, two natural-gas wall-mounted tankless water heaters, pre-wired low-voltage security and surround sound, Lutron lighting, integrated speakers, owned security cameras, a pool bath with marble waterfall vanity, and a spacious laundry room with built-ins. The two-car garage with lift offers epoxy flooring, rear yard access, and integrated irrigation controls. Enhanced by a Generac whole-home generator and meticulous attention to detail, this exceptional residence offers timeless luxury just steps from Tampa's most celebrated waterfront promenade.
Stephen Gay
Stephen Gay Contact
Katie Glaser
Katie Glaser Contact
Stephen Gay photo

Stephen Gay

Katie Glaser photo

Katie Glaser

Features & Amenities

Interior

Total Bedrooms 4
Total Bathrooms 6
Full Bathrooms 4
Half Bathrooms 2
Laundry Room Laundry Chute, Laundry Room, Upper Level
Flooring Ceramic Tile, Hardwood, Marble
Fireplace Electric, Gas, Living Room, Outside
Appliances Bar Fridge, Dishwasher, Disposal, Gas Water Heater, Ice Maker, Kitchen Reverse Osmosis System, Microwave, Range, Range Hood, Refrigerator, Wine Refrigerator
Other Interior Features Built-in Features, Ceiling Fans(s), Coffered Ceiling(s), Crown Molding, Dumbwaiter, Eat-in Kitchen, Elevator, High Ceilings, Kitchen/Family Room Combo, Primary Bedroom Upstairs, Solid Wood Cabinets, Stone Counters, Tray Ceiling(s), Walk-In Closet(s), Wet Bar

Exterior

Stories 2
Garage Space 2.0
Water Source Public
Utilities BB/HS Internet Available, Cable Available, Electricity Connected, Natural Gas Connected, Sewer Connected, Water Connected
POOL Auto Cleaner, Deck, Fiber Optic Lighting, Gunite, Heated, In Ground, Lighting, Salt Water
ROOF Shingle
Lot Features Flood Insurance Required, Flood Zone, City Limits, In County, Sidewalk, Paved
Parking Circular Driveway, Driveway, Garage Door Opener, Other
Heat type Central, Electric, Natural Gas
Air Conditioning Central Air
Sewer Public Sewer
Substructure Slab
Security Features Security System
Other Exterior Features Dog Run, Lighting, Outdoor Grill, Private Yard, Sidewalk, Sliding Doors

Area & Lot

Status For Sale
LIVING SPACE 4,558 Sq.Ft.
TOTAL AREA 5,774 Sq.Ft.
LOT SIZE 8,060 Sq.Ft.
MLS® ID TB8458302
Type Residential
Year Built 2024
Neighborhood South Tampa Homes
Architecture Styles Contemporary
ELEMENTARY SCHOOL Roosevelt-HB
MIDDLE SCHOOL Coleman-HB
HIGH SCHOOL Plant-HB

Financial

SALES PRICE $3,800,000
REAL ESTATE TAXES $8,054/yr
Zoning RS-60
View Virtual Tour
image

Schedule a Showing

We would love to show you our beautiful property. Please select your preferred date and time below. An agent will be in touch shortly to confirm your appointment.

Schedule a Showing

We would love to show you our beautiful property. Please select your preferred date and time below. An agent will be in touch shortly to confirm your appointment.

Thank you for your interest in 2915 W HARBOR VIEW AVE, TAMPA, FL 33611. We are reviewing your request and will be in touch shortly!

Mortgage Calculator

Estimate your monthly mortgage payment, including the principal and interest, property taxes, and HOA. Adjust the values to generate a more accurate rate.

All estimates are provided for informational purposes only. Actual amounts may vary.
$0,000 Your Payment 20 15 65
$0,000 Your Payment
South Tampa Homes

South Tampa Homes

Read more

Work With Us

Get assistance in determining current property value, crafting a competitive offer, writing and negotiating a contract, and much more. Contact the team today.

CONTACT US